Проект дома из СИП-панелей
Капри
Капри
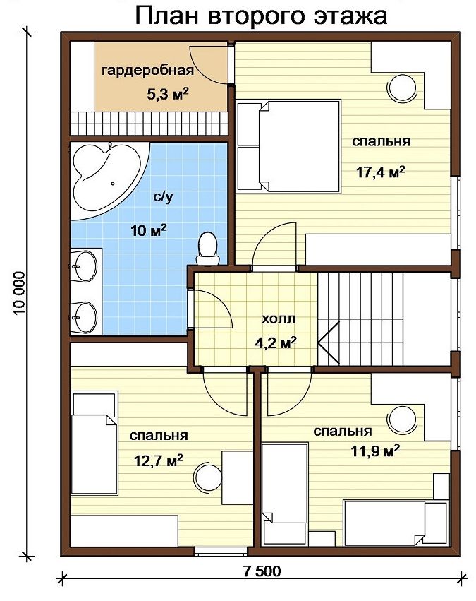
| Площадь: | 150 м² |
| Габариты, м: | 7,5 х 10 |
| Этажность: | 2 этажа |
| Спален: | 4 |
| Сан. узлов: | 2 |
- Корректировка проекта по запросам заказчика
- Поэтапная оплата строительства
- Гарантия 10 лет
Проект КАПРИ 150 кв.м.
Фундамент, коробка, крыша с монтажом:3 910 000 руб.
Добавьте нужные опции:
ИТОГО: 3 910 000 руб.
ВНИМАНИЕ!
Калькулятор рассчитывает ориентировочную стоимость!
Для получения детальной сметы нажмите на кнопку ниже.
Калькулятор рассчитывает ориентировочную стоимость!
Для получения детальной сметы нажмите на кнопку ниже.
Мы построим для Вас дом по
выбранному проекту за 2 мес.
Работаем? →
выбранному проекту за 2 мес.
Работаем? →